817peary.com

Scroll to Content

Details

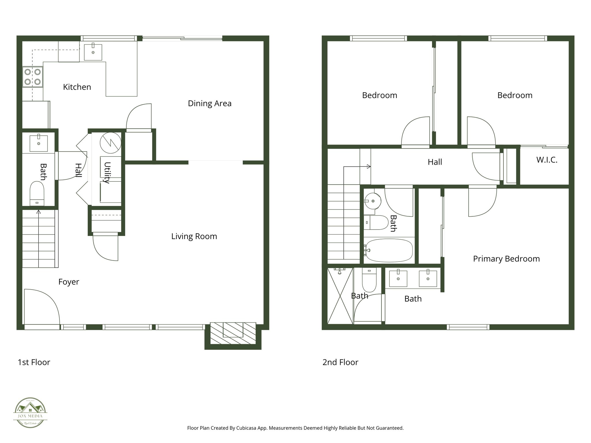
Step into this well cared for attached townhome where comfort and practicality come together. As you enter, you are welcomed into a warm living room anchored by a fireplace with gas starter, creating an easy space to relax or gather. Laminate flooring runs through the main level, offering both style and durability. The dining area sits just off the living room and flows naturally into the kitchen, which overlooks the rear patio. A sliding glass door opens to a private, well sized outdoor space that feels tucked away and is ideal for morning coffee or casual evenings at home. A conveniently located hallway laundry area adds to the everyday ease of living, along with a main level half bath for guests. Upstairs, you will find three comfortable bedrooms and two full bathrooms. The primary suite features its own ensuite bath with dual sinks, providing a functional and private retreat. Additional highlights include a detached two car garage, offering both parking and extra storage. Set within a city known for its waterfront paths, parks, and everyday conveniences, Foster City continues to be one of the most sought after places to call home

  • $1,288,000
  • 3 Bedrooms
  • 2.5 Bathrooms
  • 1,340 Sq/ft

Images

Floor Plans

Contact

Feel free to contact us for more details!